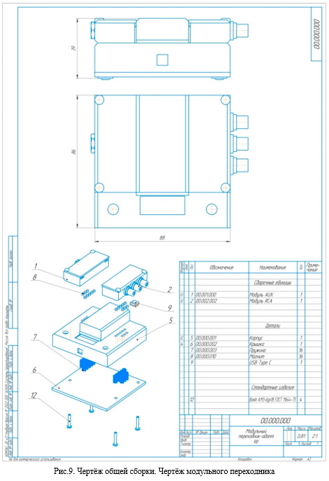
Модульный переходник-адаптер

Модульный переходник-адаптер
  • Автор(ы): Штырев И., Ермолов В.
  • Научный руководитель: Терехова Н.В., учитель инженерной графики
  • Учебное заведение: ГБОУ "Школа №1245", г. Москва

Цель работы: создание модульного устройства для адаптации цифрового сигнала различных интерфейсов передачи данных на базе перепрограммируемого микроконтроллера raspberry pi pico.
В результате мы получили готовое устройство, к которому можно подключать различные интерфейсы в виде модулей, подключаемых к устройству и отображаемых на экране, встроенном в устройство. У нас удалось сконвертировать видеосигнал по 3,5mm jack (AUX) в сигнал через интерфейс RCA.